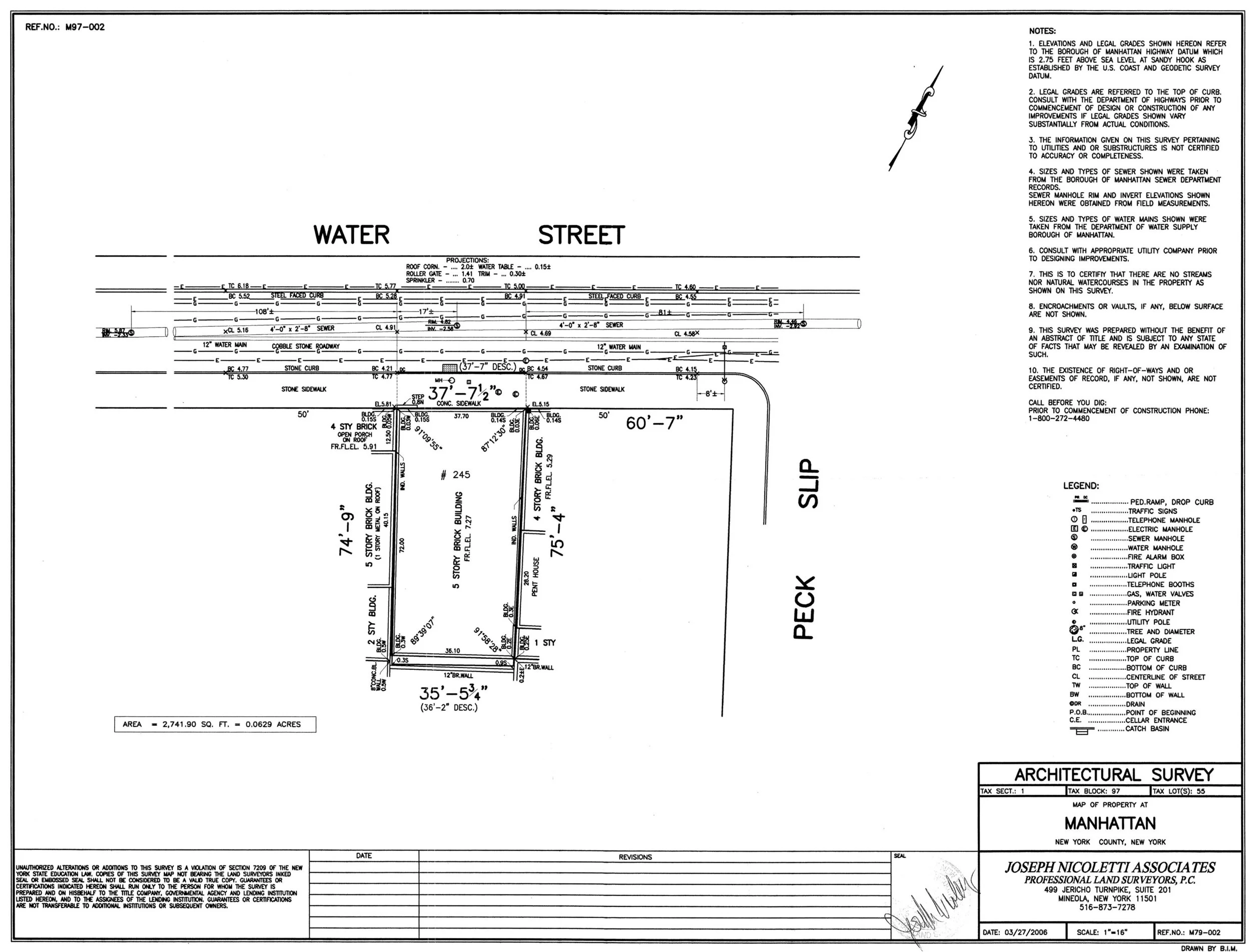
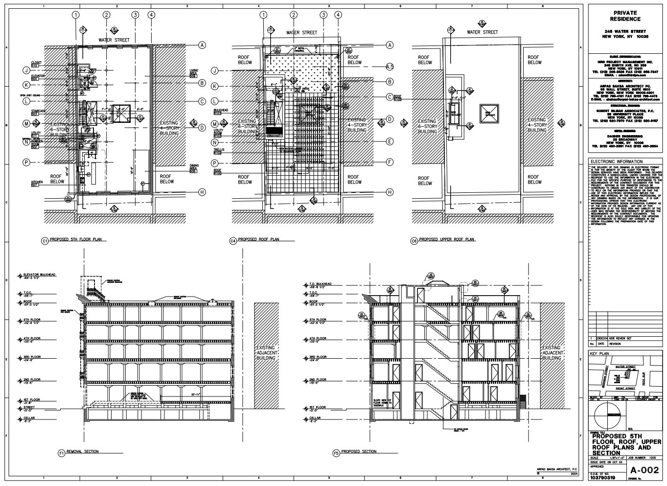
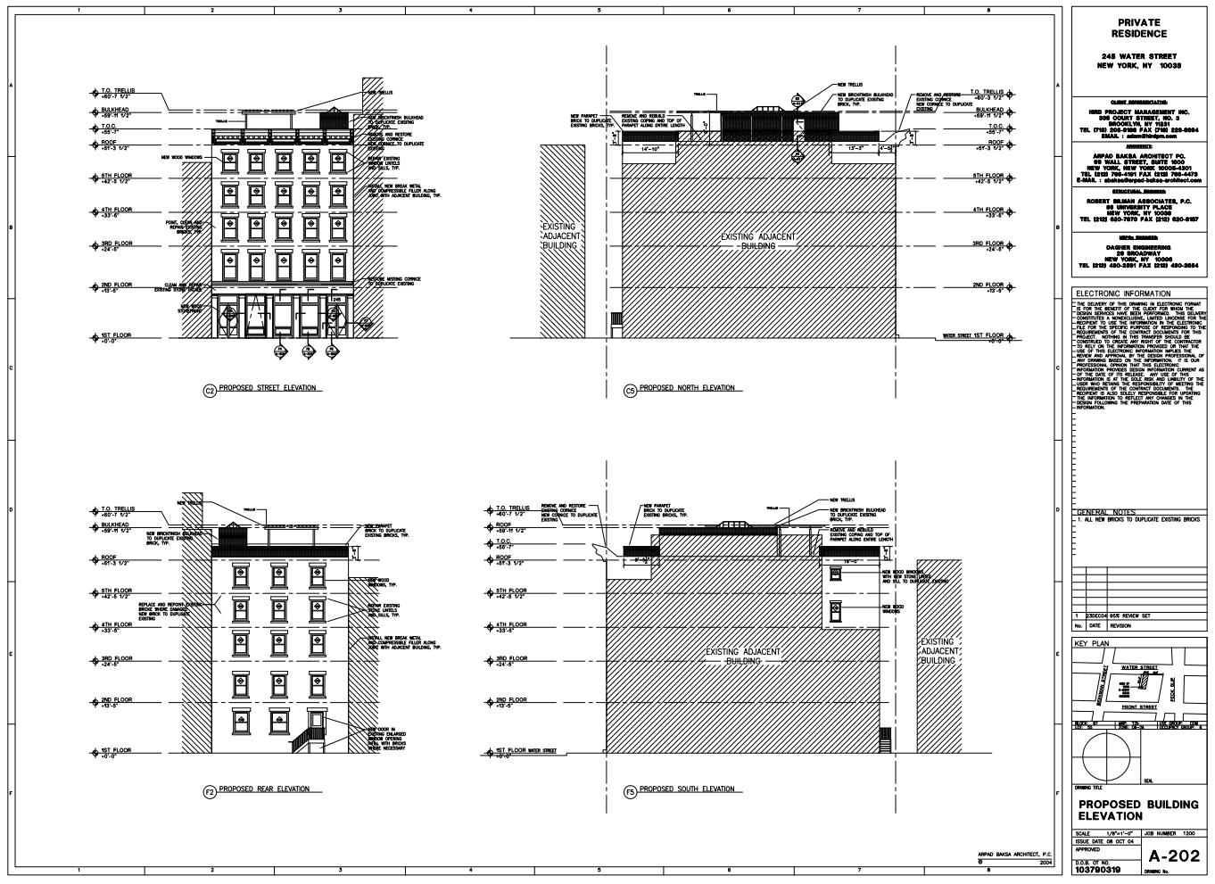
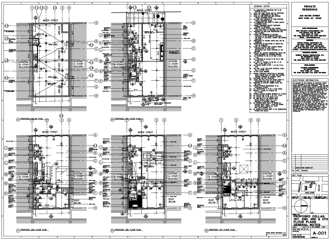
Structure
DRAWINGS
Click images above to zoom. More drawings and files available in the files section below.
BULKHEAD
Despite the historic appearance, the bulkhead is standard steel stud construction with a 1/8" brick veneer.
The bulked is super insulated with 6+" of open cell foam inside a Moony wall.
CORNICE
The cornice is a lightweight fiberglass replica of the original which was too deteriorated to be saved. It was fabricated and installed by Rally Restoration.
ROOF
The roof is a hot applied membrane with a 50 year warranty.
It is covered with 4 layers of closed cell rigid foam insulation. Because the roof membrane is inside the building envelope it is not subject to outdoor temperature swings. It is a great system.
The roof deck is surfaced with StoneDeck pavers on top of Bison pedestals.
While the laminate pavers are a great idea in theory, this batch turned out to have quality control issues with the adhesive that bonds the fiberglass to the granite veneer. This has caused some of them to crack over the years. I have replacement tiles, but swapping them out is a hassle.
There is also an Ipe wood patio section at the back of the building.
WINDOWS
The 2nd floor rear windows are vinyl clad aluminium from Tri-State Windows. They are high quality and good sealing, but do not really fit the histoprical aesthetic of the of the building.
The rest of the windows are Pella Architect Series wooden windows with VividView screens. Despite being the top of the line from a respected manufacturer, these windows are not great.
DOORS
All of the red doors are Single Panel Kalame with Annealed Metal Cladding fire doors from GenCap.
The historical non-fire rated doors throughout are from Olde Good Things.
The sliding fire doors on the 3rd and 5th floor are from James Peters & Son. It took a year to get the IMEI number on these so they would be accepted as 2 hour doors by FDNY.
Exterior Walls
All of the exterior walls have 6" open cell poly foam insulation. The studs are held back from the brick to avoid thermal bridging.
All the brickwork was repointed and repaired using the existing bricks where possible. All masonry work was done by Rally Restoration and they did a great job down to the finest details like hand brushing the grout lines create a historic appearance.
Because of landmarks considerations, the front wall brickwork was left in place except for places where the bricks had deteriorated too far to be saved. The entire wall received a high pressure grout injection treatment by Masonry Solutions. They drill holes in the wall and then pump in high pressure cement until it squirts out of the holes. This way they know the cement has reached every crack and void inside the wall, leaving it as a consolidated monolithic block of concrete. It is an amazingly effective procedure.
The back wall was deteriorated beyond repair, so it was torn down to the 3rd floor and rebuilt using the historic bricks as much as possible. A bonding beam was also added.
INTERIOR WALLS
Interior walls are standard 5/8" sheetrock over steel studs, doubled up around bedrooms and where required for fire code. None of the interior walls are load bearing. All electrical and sprinkler lines are surface mounted to make it very easy to recofgure the layout.
Many of the interior walls and ceilings also have open cell foam, especially around the bedrooms for additional sound proofing.
INTERNAL STRUCTURE
Every attempt was also made to reuse the massive historic posts and beams (many 12"x12"), especially where visible throughout the building. Robert Sillman Associates oversaw this and Muggler Shoring did the actual work. It was a HUGE endeavor to rip out and then rebuild the skeleton of the entire building!
FLOORS
Every attempt was made to reuse the existing massive joists, especially where they are visible on the 5th floor.
The sub-floors are 3/4" T&G WarmBoard. This is a great radiant heating product that has an aluminum cladding on the top side to unitformly distribute the heat. This system is amazingly comfortable in the winter - no need for slippers ever!
The flooring is Ikea Tundra click-lock laminate. It floats above the subfloor on top of a foam cushion. Because it not attached, it very easy to remove or reconfigure.
All the tile floors sit on Schluter-DITRA decoupling membrane. This is a great product and does exactly what it promises. 10 years x 7 bathrooms later and no cracking!
The tile design in the lobby is a direct rip-off from the beautiful tile floors in Passenella & Son around the corner on South Street. Copying is the sincerest form of flattery! :)
ELEVATOR
The elevator is a single piston hydraulic lift. There is a rod that goes down into a piston in a 50' hole in the ground. It was amazing to see them drill that hole.
It is a very simple, reliable, and safe system since there is only a single hose that goes from the piston in the pit to the pump box. If anything were to go catastrophically wrong, then the car would slowly descend as the oil squirted out.
The system was installed by Pro Elevator and they are great.
The car floorplate is 36"x48" with the door on the long side.
This size allows the device to be classified as a Limited Use Limited Access (LULA) elevator, which greatly reduces the required city filings and inspections. As part of the LULA designation the elevator can only stop on owner occupied floors, so it currently does not stop on the 2nd floor. There is a 2nd floor station in place, so converting this elevator to stop there would be a matter of filing the paperwork, installing a button in the existing junction box, and connecting a wire in the control panel.
OLD ELEVATOR SHAFT
There was a decommissioned elevator shaft installed in the North West corner of the building which was converted into a cozy nook space on each floor.
GARAGE
The space behind the storefront on the ground level has a high strength concrete and steel floor that lines up with the grade of the sidewalk outside. This floor was designed to hold up to 6 cars, but I ended up using the space as a workshop. I had a serious milling machine and lathe so that steel was not wasted!
BASEMENT
The basement has a concrete rat slab sitting on closed cell insulation with a 4" gravel bed.
The basement has new piers in place to support the steelwork under the garage. There are also new piers in place to make it easy to extend the garage floor to the back of the building.
There are PEX pipes installed under the basement floor insulation. I thought I'd maybe use these one day for a ground source heat pump system, but never got around to hooking them up. There are also perforated drain pipes that could be connected to a sump pump, but these have never been needed.
SIDEWALK
The front sidewalk is bluestone tinted concrete. There are embeded PEX pipes for snowmelting, but I have only used system this once becuase I like to shovel!
REAR YARD
There is a tiny rear yard about 5' wide. It has a poured concrete deck and a drain. The only access is though the 1st floor rear windows.
FILES
A zip file with the the as-built Autocad architectural drawings can be downloaded here [archived link]. You can use the free Autodesk TrueView viewer to open these files and make measurements using the "measure area" tool.
The full construction document package is available here [archived link]. There is a lot in there, so let me know if you have any questions or need help locating a specific document.